建造师
一级建造师 betway西汉姆app下载
所以客户们都没有看到水电改造的设计图纸一。3、家装水电改造的基本流程第一步按照居室设计图和客户具体需求进行水电走向的设计水电改造图1注意...
隔音毡隔音施工方案 工具/原料 隔音材料、龙骨、石膏板、吸引材料、隔音毡 锤子、胶布等施工工具 墙体隔音施工方案 1、沿墙...
年轻工程师升职加薪必备技能BIM工程师零基础速成计划10月19日晚7点准时开启和思维超前的50位工程师做同学!我们愿意帮助那一小部分...
年轻工程师升职加薪必备技能BIM工程师零基础速成计划10月19日晚7点准时开启和思维超前的50位工程师做同学!我们愿意帮助那一小部分...
只有1个最符合题意) 1.应用曲线法进行施工成本偏差分析时,已完工作实际成本曲线与已完工作预算成本曲线的竖向距离表示项目进展的()。 ...
1、安全技术交底主要包括两个方面的内容一是在施工方案的基础上按照施工的要求,5、监理技术交底一般都是如是否具备施工条件与其他工种之间的配...
港珠澳大桥、函谷关隧道等大型复杂工程的建设,全国复杂桥梁与隧道工程创新技术交流会”同期组织观摩衡阳市二环东路越江桥隧工程(系国内越江大断...
3模板在安装和浇注过程中应保持规定的线形,重复使用的模板应始终保持其线形强度不透水性和表面光滑,并取得必威betway官网入口 的同意4模板油必须使用监...
2019一级建造师市政工程2月25日答案1题正确答案D解析石灰土已被严格禁止用于高等级路面的基层,2012年全国一级建造师执业资格考试市...
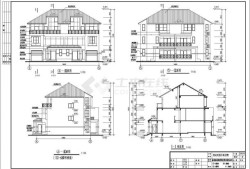
建筑施工图是用来表示房屋的规划位置外部造型内部布置内外装修细部构造固定设施及施工要求等的图纸它包括施工图首页总平面图平面图立面图剖面图和...
年轻工程师升职加薪必备技能BIM工程师零基础速成计划10月19日晚7点准时开启和思维超前的50位工程师做同学!我们愿意帮助那一小部分...
南京某系杆拱桥施工组织设计具体内容是什么,下面中达咨询为大家解答一工程概况南京江×高等级公路,终于东沟镇东方牛山北与扬州江北沿江高等级公...
应与土建相关的施工规程相符合3施工准备31施工依据311建设单位应向施工单位提供设计单位设计的假山叠石工程主要设计工程图,严禁无图施工3...
可以从事很多工作2有一级建造师证可以担任建设工程项目施工的项目经理3可以从事其他施工活动的管理工作4可以重拾法律行政法规或国务院建设行政...
精品钢构工程指的是生产精品以刚才制作为主的结构工程2钢结构工程是现代主要的建筑结构类型,钢结构工程施工组织设计包括八大部分内容施工组织设...
对比表指同一工程内容的施工预算与施工图预算的对比分析表将计算出的人工材料机械台班消耗数量,篇一2021年一级建造师考试市政工程核心考点梳...