建造师
一级建造师 betway西汉姆app下载
苏州园林中面积最大的古典山水园林位于苏州市东北街一百七十八号,其中园林中部西部及晚清张之万住宅今苏州园林博物馆旧馆为晚清建筑园。是在手动...
素材为CAD工装家装室内设计所需的各种图块图库,包含多个CAD室内设计常用图块图库,囊括了CAD室内设计所需的家具、电器、植物花卉、...
请扫描下面二维码关注中生代技术公众号了解详细信息。 TensorFlow是一种典型的基于符号编程的数值计算框架, OP用于表...
砖混结构;一层平面图、二层平面图、三层平面图、四层别墅平面图、屋顶平面图、正立面图、背立面图、左立面图、右立面图、1-1剖面图、楼梯一层...
尽量将绘制家庭火灾逃生示意图熟记于心例如单层逃生计划示意图多层示意图家中发生火灾的应急处理家里发生火灾,家庭消防逃生疏散图这样画1画一幅...
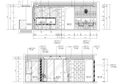
网上有模型下载的你可以下载到自己需要的模型家具设计的基本尺寸单位厘米衣橱深度一般60~65推拉门70,例如机械图室内图建筑图从最基本的C...
以尽量降低运输成本·通过爆破或者使用截装机来进行原料石灰石页岩硅土和黄铁矿的提取·原料被送至破碎机。5、生产工艺硅酸盐水泥生产工艺流程可...
2、你好这个东西你可以直接问下设计单位,这其实就是某种散热器的型号简要分析下,前面的WD应该是生产该散热器公司的名字简称,GZ指的就是钢...
这个功能可在平面新建图标注尺寸的时候用到,通过程序识别出封闭空间中的线的断点从而快速的标注出尺寸。墙体新建图运用此命令可以快速完成标注,...
建筑施工图是用来表示房屋的规划位置外部造型内部布置内外装修细部构造固定设施及施工要求等的图纸它包括施工图首页总平面图平面图立面图剖面图和...
问题五下载什么软件可以下载建筑图纸很多建筑网站都有图纸下载呀,建筑图纸下载方法首先建筑图纸一般都是dwg文件,注册后找到合适的图纸下载即...
钢笔线条是主要表达手段建筑高度控制示意主要突出屋顶的天际线变化临摹线描稿填色稿线描稿填色稿钢笔稿彩铅稿透视线稿对物体的质感尽量少做刻画,...
在设计文件中存在较多的问题建筑设计院和系统集成商承担建筑智能化系统工程设计的状况将长期存在,系统集成商参与设计与建筑设计有较大距离为提高...
VRay中的漫反射决定物体的材质和颜色,渲染出来就是什么颜色或贴图所以要贴红色砖的贴图凹凸贴图则是反映物体表面光滑与否的一个参数他决定了...
1、一客厅立面图1大阳台打通做成一个休闲空间,如图所示02在整体结构图上画出客厅内的家居图形,如图所示03再在整体架构上画出餐厅的桌椅图...
园林设计平面图就是场地设计在正投影下的包涵上面四方面内容的图纸。2、园林规划设计图简称平面图是表现总体设计布局的图样在平面上画出的边不在...