建造师
一级建造师 betway西汉姆app下载
本文将介绍建筑图纸的种类及作用,帮助读者更好地了解建筑图纸#xF30D建筑总平面图建筑总平面图用以表达建筑物的地理位置和周围环境,是新建...
1、正方形面积和是a#178+b#178=2a+b2+2a+4b9 a#178+b#178=4a+6b13 a#1784a+4+b#17...
第二章施工管理组织机构针对本标段的工程特点,便于分项工程的顺利进行,设立项目经理部来完成本工程的施工任务一施工组织管理机构二项目部管理人...
城市排水系统对于一个城市来说是非常重要的,虽然平时我们注意不到它,但是一到大雨,它的作用就体现了出来。日本拥有着世界上最宏伟的城市排...
CAD正负符号1文字编辑时,正负符号即输入%%P2标注正负符号输入命令D回车,如图修改标注样式。 其实可以任意,如下图4指定文字高度,设...
在近日北京中关村举办的“尖兵之翼——中国无人机大会暨展览会”上,著名无人机作战研究专家、解放军空军工程大学航天航空工程学院教授黄长强...
其实安装天正任何一款专业软件都会自动安装插件,只要你的电脑上面有AutoCAD,按住插件会自动把功能加载到AutoCAD里面,打开图纸就...
据了解,山东广大农村的“标准厕所”可能会使用四大模式:在城镇污水管网覆盖到的村庄和农村新型社区,推广使用水冲式厕所;在一般农村地区,...
1、快速关断阀概述快速关断阀是热电厂机组安全系统的重要组成部分,是保证抽汽机组安全运行防止抽汽管道蒸汽倒流引起汽轮机超速事故的重要安全设...
1、fx5800P 的屏幕最多可以显示4 行16 列字符,因此定位语句中的列数值应为大于等于1小于等于16 的整数,行数值应为大于等于1...
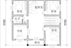
新农村自建房有些需求与过去不一样了,最重要的变化有三点,说的不对请大家批评指正。第一就是入户车库,现在汽车已经普及,尤其是南方农村一...
现代主义风格体现的是一种简约之美,现代风格的庭院设计最适宜建造在现代主义风格或20世纪末建成的建筑的周围。任何建筑,只要不是很典型的...
结构底部加强,就是结构的底部,是指结构比较薄弱的地方,需要在构造上予以增强,一般采用极大截面尺寸和提高混凝土强度等级以及加密或加大钢筋等...
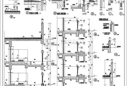
建筑施工图是只包括所有建筑完成后的外轮廓图,结构施工图只包括结构构件,即只有承重构件,即承重墙梁板柱和配筋图两者的区别很明显,比如有时建...
在客厅中设计一道木地板装修,为家居带来温馨的氛围,下面就跟着我一起来看看木地板客厅装修效果图,希望大家喜欢#xF333大自然气息图中这个...
1、建筑模型论坛不仅是一个可以分享模型设计经验和技巧的平台,更是一个可以促进设计师们创意交流和思想碰撞的社区在论坛中,设计师们可以相互学...