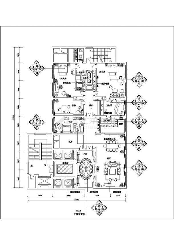
酒店豪华套房平面图,套房平面图
- 工程资源
- 2023-12-21
- 444
新农村自建房有些需求与过去不一样了,最重要的变化有三点,说的不对请大家批评指正。第一就是入户车库,现在汽车已经普及,尤其是南方农村一年下雨100天的地方,有个车库还是方便。第二就是套间,也就是主卧或其他卧室内自带卫生间和衣帽间,会更加舒适和方便。第三就是露台,与过去晒台不一样,适当绿化可以纳凉,休憩,提高生活品质。看看今天这套新农村别墅户型怎么样?占地11.5米X11.5米,符合宅基地审批要求,三层,有车库,二楼主卧是套间,顶楼有露台,供大家自建房参考。

一层平面图:大部分农村建房子要考虑道路条件,车库能放北边更好,但只有南边道路的情况下,也没得选择。
二楼平面图:主卧是套间,自带超大衣帽间以及带浴缸的卫生间。
三层平面图:新农村建房子,露台还是必须要有,虽然已经不要晾晒粮食,但适当绿化可以让生活更加惬意。
立面图:面砖和涂料的搭配经济适用,如果采用文化石和真石漆效果会更加好。
微信公众号:住宅公园,450套农村自建房图纸下载,民宅定制设计

免责声明: 本站提供的任何内容版权均属于相关版权人和权利人,如有侵犯你的版权。 请来信指出,我们将于第一时间删除! 所有资源均由免费公共网络整理而来,仅供学习和研究使用。请勿公开发表或 用于商业用途和盈利用途。
本文链接://www.studdz.com/ziyuan/20037.html

发表评论