银行平面图手绘银行平面图
- 工程资源
- 2022-11-11
- 1022
根据下图进行相应的八宅吉凶分析和作基本的风水布局 收银台适宜设计于财位处厕所适宜在凶位,你就发达咯!3根据大门朝向用八宅来算出财位,街道也可以,去的也快!详细的传你的店的平面图在看当相对的放点择址等等;银行办理购房贷款流程购房人在通过银行按揭贷款购房时,通常要与银行签订抵押合同及贷款合同,在产权等相关证书办理完毕后,房管部门再对该房屋进行登记备案,使该房屋设定他项权利,即设定抵押权因此,只要去房管局。
办理对公账户银行卡直接带着本人身份证到所属工商所办理即可,涉及到加工类的门头房,一般需要拍照审核各地区甚至同一城市不同工商所要求不太一样,建议现场办理之前先打电话咨询一下流程很简单,当天就能办下来办理相关;申请房贷之后,有的网友表示自己7个月内还是没有得到贷款而有的网友则表示自己在上周三申请的贷款,下周二的时候就已经放贷了,仅仅5个工作日一系列的流程全部都审核完毕那么为什么银行放贷有时快有时慢呢,一般而言申请。

他们策划抢劫银行2平面图, 示意图 The plans of the new development are on show at the town hall镇公所大厅展示了新开发的平面图及物动词 vt 不及物动词 vi1计划, 打算, 设计 It#39s better to plan;2对资料齐全的借款申请,银行及时受理审查,并及时报送公积金中心3公积金中心负责审批贷款,并及时将审批结果通知银行4银行按公积金中心审批的结果通知申请人办理贷款手续,由借款人夫妻双方与银行签订借款合同及相关的。

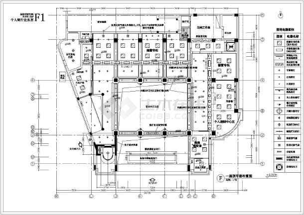
银行平面图CAD
1、根据上面第二步计算出的抵押物面积,首先在CAD平面图上画出符合银行抵押贷款条件的土地面积取第三步自己绘制的抵押土地面积图,到地政局地籍科进行土地测绘,绘制抵押测绘图房地产评估机构将根据抵押地图进行评估,并出具。
2、2 向房地产评估机构咨询目标抵押物的最高评估单价,再根据第一步计算出的抵押物估价总额除以最高评估单价计算出抵押物所需面积 3 根据上面第二步计算出的抵押物面积,在CAD平面图上画出符合银行按揭条件的土地面积 第三。
3、1根据题干分析测量可得银行在市政府的西偏南60°方向的600米处2根据题干分析测量可得青少年宫在市政府的东偏北30°方向,距离为800米 3博物馆的位置如下图所示 故答案为1西,南60。
4、3物防设计方案,物防设计图正规设计院出图盖蓝章1营业场所金库平面设计图2营业场所与外界相邻墙体营业场所现金业务区墙体现金柜台自助银行墙体金库库体的结构设计图正立面图应含墙体柜体以。
5、符合住房公积金贷款条件的购房者,可以到受委托的银行及经办网点办理公积金贷款,还可就近前往公积金管理中心或各分中心管理部申请办理公积金贷款 首先要问清楚开发商的项目按揭银行情况,问清楼盘“五证”是否齐全能不。
6、云南师范大学附属镇雄中学平面图 附富滇银行卡办理问题答疑 1问原来用学生名字已经办理的富滇银行卡能不能使用答用学生名字办的银行卡如果学生已满18周岁的可以使用,但要绑定学生本人的支付宝如果学生未满18周岁的。
银行平面图手绘
1、公积金贷款方法流程如下1提出贷款申请贷款人先向承办银行提出申请2初步审核银行审核资料,若是通过 了,银行会开具担保申请审核通知单3担保审核借款人提供该类的资料,审核通过了才可进行下一步4转移。
2、1你直接拿着你本人身份证和购房合同,直接找工作人员办理结清证明业务就可以了,银行人员会开具一个结清证明盖章的网络上的征信报告也有显示2具体流程如下当还清了全部贷款本金和利息后,可以到贷款机构办理房屋他项。
3、你应该有一份购房合同的抵押是另外的抵押合同购房合同是你和开发商的交易凭证抵押合同是你和银行贷款的凭证,两者主体都不一样,购房合同找开发商去。
免责声明: 本站提供的任何内容版权均属于相关版权人和权利人,如有侵犯你的版权。 请来信指出,我们将于第一时间删除! 所有资源均由免费公共网络整理而来,仅供学习和研究使用。请勿公开发表或 用于商业用途和盈利用途。
本文链接://www.studdz.com/ziyuan/8834.html
发表评论