建筑施工设计图建筑施工设计图说明间距怎么看
- 工程资源
- 2023-07-09
- 566
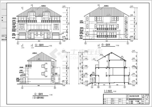
4建筑工程施工图它是设计工作的最后成果,是进行工程施工编制施工图预算和施工组织设计的依据,也是进行施工技术管理的重要技术文件5建筑施工图建筑施工图主要反映一个工程的总体布局,表明建筑物的外部形状内部;建筑施工图是用来表示房屋的规划位置外部造型内部布置内外装修细部构造固定设施及施工要求等的图纸它包括施工图首页总平面图平面图立面图剖面图和详图结构施工图指的是关于承重构件的布置,使用的材料。
建筑图和施工图的概念建筑图是一个统称,它分为方案设计图和施工设计图,方案设计图和施工设计图的区别为两者绘制深度不一样,基本内容相同施工图,顾名思义,就是建筑施工设计图了,它的作用是拿来做预算和指导现场;1建筑施工图包括建筑总平面图建筑平面图建筑立面图建筑剖面图和建筑详图2结构施工图包括基础平面图,基础剖面图,屋盖结构布置图,楼层结构布置图,柱梁板配筋图,楼梯图,结构构件图或表,以及必要的详图。
建筑施工设计图怎么画
1、绘制建筑施工图的步骤l平面轴线的确定 开间与进深有多少开间,有多少跨房间,先要明确一般建筑工程设计图纸平面尺寸用毫米mm表示应标明各层平面的定位轴线并须与其它建筑图的定位轴线一致 2画样体柱子 平面。
2、3建筑施工图 包括总平面图平面图立面图剖面图和构造详图表示建筑物的内部布置情况,外部形状,以及装修构造施工要求等4结构施工图 包括结构平面布置图和各构件的结构详图表示承重结构的布置情况,构件类型。
3、选用的主要材料及特殊施工要求等26给排水设计图 给排水总平面图,绘出全部建筑物位置,给水管道平面位置,标注出干管管径检查井化粪池及其他给排水构筑物场地内外给排水管道连接点进出口控制标高和坐标室内给水。
4、建筑施工图是来表示房屋的总体布局,外部形状,内部布置,内部构造及室内,外装修等情况的工程图样,是房屋施工放线,安装门窗,编制工程慨算,编制施工组织设计的依据结构施工图 是说明一栋房屋的骨架构造的类型尺寸使用材料。
5、1新手要想画好施工图,首先必须看懂建筑施工图第一步就是看懂建筑施工图,建筑施工图包括以下部分图纸目录,门窗表,建筑设计总说明,一层~屋顶的平面图,正立面图,背立面图,东立面图,西立面图,剖面图,节点大样图。
6、2设计总说明主要说明工程的概况和总的要求3建筑施工图包括总平面图平面图立面图剖面图和构造详图表示建筑物的内部布置情况,外部形状,以及装修构造施工要求等4结构施工图包括结构平面布置图和各构件的。
7、几次下来应有独立工作的能力但是要细心,不能粗枝大叶 结构设计第一步就是看懂建筑施工图,建筑专业是整个建筑物设计的龙头,没有建筑设计其他专业也就谈不上设计了,所以看懂建筑施工图就显得格外重要大体上建筑。
建筑施工设计图要盖几个章
建筑施工图设计要求具体内容是什么,下面中达咨询为大家解答任务与要求施工图设计的主要任务是满足施工要求,即在初步设计或技术设计的基础上,综合建筑结构设备各工种,相互交底核实核对,深入了解材料供应施工技术。
建筑施工图设计包含的内容有哪些 导语房屋建筑施工图包括建筑结构水暖电设备各一套,有的只有建筑结构图纸那建筑施工图设计包含的内容有哪些下面就由我为大家介绍一下,希望对大家有所帮助建筑图中包括建筑。

建筑施工图一般包括图纸目录总平面图建筑设计总说明建筑平面图建筑立面图包括东南西北等建筑剖面图建筑详图节点大样图门窗大样图等墙身大样图楼梯布置图等,各个图形按照自身的表达特征传递。
1总图部分总平面图竖向设计图总平面定位图规模不大时可以合在一张图上总平面消防设计图非必要图纸,复杂建筑建议做此图2平面图各层平面图,包括机房屋顶平面图纸太大时,可能需要分区出图,这。

免责声明: 本站提供的任何内容版权均属于相关版权人和权利人,如有侵犯你的版权。 请来信指出,我们将于第一时间删除! 所有资源均由免费公共网络整理而来,仅供学习和研究使用。请勿公开发表或 用于商业用途和盈利用途。
本文链接://www.studdz.com/ziyuan/15625.html

发表评论