室内装修图纸施工图室内装修图纸
- 工程资源
- 2023-05-30
- 612
天花吊顶布置图是天花吊顶装修项目中最重要的图纸之一它要求标明天花造型的尺寸定位灯具位置及详图索引,并应标注天花底面相对于本层地面建筑面层的高度,同时还要注全各房间的名称4建筑改建平面图 建筑改建平面图是根据。
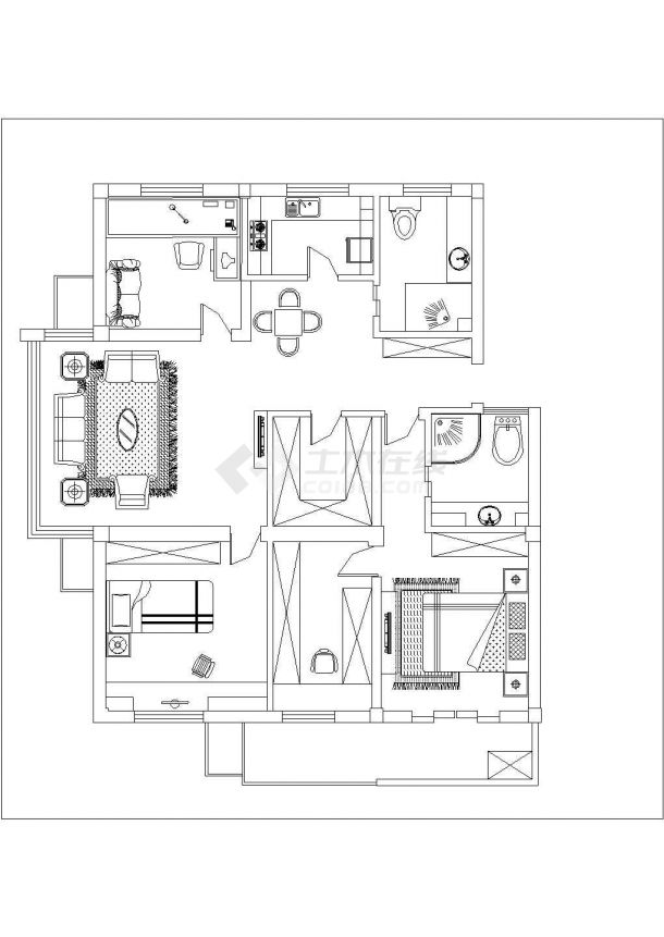
1图纸目录包含哪些图纸,及图纸页码2设计说明房屋基本情况介绍及计师是怎么设计的3原始平面图详细标注室内尺寸,门窗梁柱进水口地漏煤气管道位置等等4平面设计图不解释,正常人都懂5天花吊。
天花吊顶布置图是天花吊顶装修项目中最重要的图纸之一它要求标明天花造型的尺寸定位灯具位置及详图索引,并应标注天花底面相对于本层地面建筑面层的高度,同时还要注全各房间的名称4地面材质图 地面材质图,顾名思义是。

包括八种图纸要装修,找沪佳1原始平面图房子最初的结构草图,一般装修公司在量房时,就会画上这样一张图纸,主要是为了了解房子的大小布局各方面尺寸等,还需要标注好承重墙位置墙体厚度层高等2平面。
根据功能不同,装修图纸包括平面图立面图节点图细部图等等每种图纸都有其独特的用途和特点,因此在设计和施工过程中都是必不可少的同时,酷家乐作为一款专业的家居设计软件,也能够在很大程度上帮助用户快速制作各种。
\r\n \r\n \r\n\r\n一室内装修图纸怎么看懂\r\n \r\n\r\n1了解正投影及侧投影,这样才能明白图纸中的建筑规划2熟知透视图原理,并掌握建筑施工图的绘画技巧3看图纸之前,先要看设计说明,在根据标准。
室内装修的图纸方面需要四类图纸施工方案图施工平面图各立面图水电施工图1施工方案图在施工前设计师根据客户要求,出的一套具体实施方案包括设计图纸和措施时间尺寸等等2施工平面图施工平面图是施。
5地面铺装图地面材料及铺设规范6强电布置图冰箱,空调等强电流线路走向布置7弱电布置图灯具,电话,网络灯线路走向布置8开关插座图开关及插座的详细布置图9立面图 若干张, 其中必画的有,厨房立面,卫生间立面。
但是现在的家装装饰行业大都不是很规范,你画的施工图大多是拿来给客户和工人看的也没有公装那么严格的审查图纸,所以用图纸表达你的设计思路才是施工图的第一要务建议你要多去工地看看,家装的施工很简单,需要画施工。
室内装修施工图是我们在准备装修前期,请设计人员通过软件绘制的平面图纸,其主要作用就是能让房屋主和设计师以及施工人员更为直观的了解装修的每一步流程装修施工图决定了我们工程能否顺利进行,是非常重要的图纸那么,室内。
识别室内装修图纸符号必须学会基础的绘画技巧和知识识别室内装修图纸符号操作如下1必须学习基本的绘画技巧和绘画知识,真正理解正投影和侧投影时,就能彻底理解图纸中的建筑规划2学习透视原理,以及建筑图纸的绘画技巧。
卧室一般地面都是地板,卫生间是抛光装,室内装修的图纸主要的是平面布置图,吊顶布置图,电视背景墙里面图等,要注意图纸各房间标高,吊顶标高,灯槽带,以及电视背景特出艺术造型的表达要如何看懂cad图纸就要多了解室内装修。
室内装修图纸顾名思义就是施工图了,不是方案阶段的图纸施工图包括封面,目录,设计说明常含施工说明及施工做法表,材料表,五金洁具表,灯具表,门窗表,总面平面图,家具图,隔墙类型尺寸图,天花图lt天花尺寸。
封面,设计说明,目录,电路系统图,原始建筑图,平面布置图,拆墙图,砌墙图,地面铺设图,天花布置图,灯具连线图,开关图,插座图,水路图,家具尺寸图大致就是这些了。
室内装修的图纸方面需要四类图纸施工方案图施工平面图各立面图水电施工图施工方案图在施工前,设计师根据客户要求,出的一套具体实施方案包括设计图纸和措施时间尺寸等等施工平面图施工平面图是施过程。

这个图纸的作用就是让业主提前知道将要居住的家居布置格局图,同时方便业主购买家具,通俗的说就是整个房子的规划图10室内效果图 大家在百度上搜索下,就会出现许多漂亮的装修效果图,当然这都是装修公司做出来的图纸,一般。
免责声明: 本站提供的任何内容版权均属于相关版权人和权利人,如有侵犯你的版权。 请来信指出,我们将于第一时间删除! 所有资源均由免费公共网络整理而来,仅供学习和研究使用。请勿公开发表或 用于商业用途和盈利用途。
本文链接://www.studdz.com/ziyuan/14452.html
发表评论