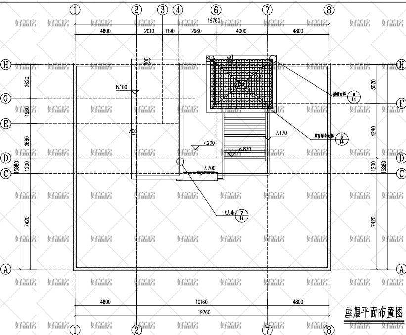
屋顶花园cad剖面图,屋顶花园cad
- 工程资源
- 2022-11-05
- 809
屋面活荷载标准值KNm2荷载规范431强条技术措施荷载篇1 上人屋面取202 不上人屋面取053 屋顶花园取30不包括花圃土石材料注施工或维修荷载较大时,屋面活荷载应按;在CAD工具,选项,显示,色彩,点模型选项卡中,选择以下颜色白色,应用程序和关闭,你可以成为一个白色背景,然后你可以选择把里面的WORD CAD图像,用鼠标右键选择复制,粘贴到WORD里面,双击就可以去CAD视图;直接搜索建飞设计图纸大全有的是还在这里找啊 建飞别墅设计图纸及效果图大全包括2600多套完整的别墅施工图纸及效果图,别墅施工图纸为CAD格式,可编辑修改打印出图后直接施工建别墅,包含结构图平面图;地段为12英亩,宅基为矩形,长约225米,宽为20米,共三层底层柱托的架空层三面透空,由支柱架起,内有门厅,车库和仆人用房,是由弧形玻璃窗所包围的开敞结构二层有起居室卧室厨房餐室屋顶花园和一。
我最近做那个屋顶花园的图就很多图例是直接cope的别的CAD图里头的,所以出现很多不知道的图层,而且还删不掉 但是图还是我的原创,所以还真不知你那图是原创还是半原创了,我建议你先问看那个人到底怎么回事;平面布置图是最基础的,其次还要做出来分析图,植物配置图竖向图大样图彩平图效果图,还可以加上灯光配置这些,具体的是要看你的要求来的。
在鲁文网有这样的资料的,或者你可以到那里去下载来看这样就可以参考一下了;这是风格问题没得固定的比如说我自己正常用就是,外框08主线条0304普通02,字体也一样附注4或者3,签字栏一般用5,凸显主次效果就可以了CAD设计屋顶花园小路一般是2米之间。

这个很好找的,去天圆地方论坛上面自己下一个就好了,很多的,想下哪个下哪个;屋顶花园属于园林设计,需要园林设计的CAD软件进行设计绘图,装修设计的CAD软件很难画出理想效果。

二层别墅CAD图纸找了很多,你说的详细一点是怎么个详细法二层带地下室别墅施工图 豪华别墅CAD图纸 二层别墅施工图 独立别墅CAD图纸 二层半别墅平面图施工图 屋顶花园布置图 多层别墅设计方案 二层别墅CAD图纸 二层别墅。
免责声明: 本站提供的任何内容版权均属于相关版权人和权利人,如有侵犯你的版权。 请来信指出,我们将于第一时间删除! 所有资源均由免费公共网络整理而来,仅供学习和研究使用。请勿公开发表或 用于商业用途和盈利用途。
本文链接:http://m.www.studdz.com/ziyuan/8647.html
发表评论