印染废水处理工艺流程图水处理工艺流程图
- 工程资源
 - 2023-07-02
 - 773
 
一下是逆流循环系统 图是我设计的 本方案采用逆流式循环方式,即游泳池的全部循环水量,经设在游泳池底部布水口送入池内,再由设在池壁的回水口取回使用过的相应体积的水,通过循环水处理设备进行净化处理加药过滤。
二级反渗透设备工艺流程图二级反渗透设备应用领域有哪些在应用领域这块主要是超纯水制备中水回用项目医药纯化水处理等方面比较多,具体的领域有医疗制药纯化水电子行业超纯水半导体行业超纯水石油化工水处理锅炉。
用此法从甘草中可提取分离出甘草甜素结晶以含生物碱黄酮水溶性酚性化合物和无机矿物质的4种中药有效部位的单味药材黄连葛根丹参石膏水提液为样本,在LD605型树脂上进行动态吸附研究,比较其吸附特性参数。
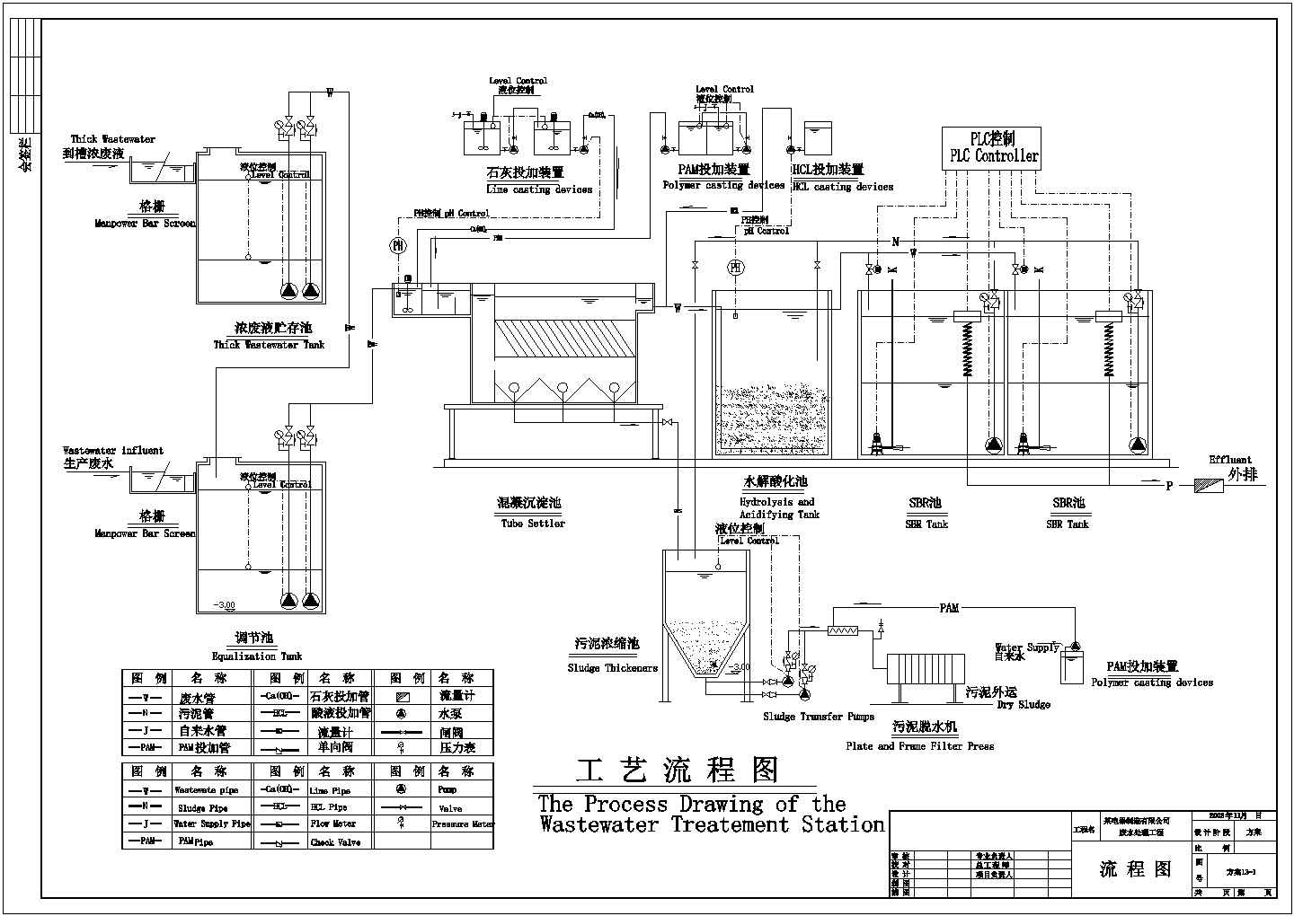
长进很快的你要的污水处理工艺流程图我这里很多图纸,都是大型污水处理厂的施工图纸以后直接找我要就是了另外,网易给排水和水世界这两个网站上有很多图纸,你可以轻易下载到供你学习。
但允许水分子透过,反渗透复合膜脱盐率一般大于98%,它们广泛用于工业纯水及电子超纯水制备,饮用纯净水生产,锅炉给水等过程,在离子交换前使用反渗透设备可大幅度降底操作用水和废水的排放量反渗透水处理原理图如下。
不都是的流程图注重的是工艺流程,只要版面布置合理,能表示清楚水处理设施的流程即可尽量按照11的比例画是看图方便,而且美观但水处理设备之间管道复杂,比如有各种加药装置等,那么这部分的设备一般会放置到图的边角。

一般地表水处理流程,适用于浊度小于3mg 每L的河流水 709 发布于20120503 举报 评论 0 0 为您推荐 污水处理工艺 常规给水处理工艺图 给水处理常规工艺混凝 给水处理的典型工艺 常规给水厂工艺流程图 城市给水。
需要进行牛粪的干湿分离,然后再爆氧,经过三级氧化,可以达到排放的标准。
免责声明: 本站提供的任何内容版权均属于相关版权人和权利人,如有侵犯你的版权。 请来信指出,我们将于第一时间删除! 所有资源均由免费公共网络整理而来,仅供学习和研究使用。请勿公开发表或 用于商业用途和盈利用途。
本文链接:http://m.www.studdz.com/ziyuan/15424.html
			
发表评论