07fj02图集113页,07fj02图集
- 工程资源
- 2023-03-14
- 1723
1、07fj02图集126页见下附件,1654×1169像素图片图集号02J4010203J401 专业标准类别标准图图集介绍本图集适用于一般工业与民用建筑,包括普通钢梯钢螺旋梯吊车钢梯作业台钢梯屋面检修钢梯户内钢梯,及。
2、07fj02人防图集第106页如图人民防空工程亦叫人防工程,是指为保障战时人员与物资掩蔽人民防空指挥医疗救护而单独修建的地下防护建筑,以及结合地面建筑修建的战时可用于防空的地下室早期人防 在60年代末70年代初,我国。
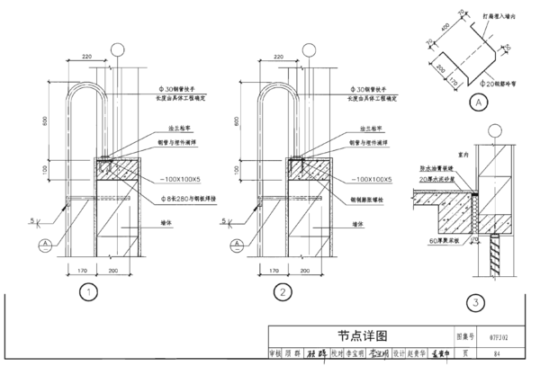
3、07FJ02防空地下室建筑构造,第84页节点详图的标高图集的节点详图不会规定标高的,因为工程规模情况是各不相同是由设计确定图纸中标高已经标注好了只要细心地找参考资料07FJ02防空地下室建筑构造。
4、07fj02人防图集第107页节点详图见下附件,2840×1998像素图片,请下载右键单击目标另存为后查看,希望对您有点帮助。
5、人防,简单就是防空设施可以抵御空袭核爆袭击等灾难性情况的设施,人防设计跟普通上部建筑物的结构设计有所不同,很多参数都需要查看专门的人防设计规范,这是最大的不同,人防图纸跟平面图,大致相同地下室有两种作用一。

6、07fj02人防图集114页见附件,1654×1169清晰大图,请点击放大后查看或下载另存为,望采纳。
7、07FJ02 防空地下室建筑构造,第133页防洪挡板做法。
8、07fj02图集126页见下附件,1654×1169像素图片,请点击放大后查看或下载另存为,希望能够帮到你。
9、国标07fj02第110一111见下附件,1654×1169像素图片标准表示强制标准冠以“GB”推荐标准冠以“GBT”与很多ISO国际标准相比,很多国家标准等同采用IDT,identical to 其他标准修改采用MOD,modified in。
10、07fj02防空地下室建筑构造标准图的第103页是外附壁式防爆电缆井的标准设计,见下图。
11、07FJ0203现在04图集已经很少用了,基本上用07图集,建设部的。
12、人防防护密闭门的做法图集在双扇防护密闭门密闭门和门框墙选用图集GJBT311人防门人防门是属于民防防护设备,人防门就是人民防护工程出入口的门。
13、问题六GB07FJ02第84页钢爬梯理论重量每米多少 20分 07fj02爬梯重量由逻辑的或数学的陈述所连接的一组假设或命题,他对经验现实的某供领域或某一类现象提出解释,在不太严格的意义上,有关现实某一领域的任何抽象的。
14、建筑人防图集上是有做法的,你可以买本图集看看有的人防门下面设计的是活门槛,有的是死门槛,活门槛只有战时封堵的时候才安上去,平时是不安的如果是死门槛的话,结构施工图上应该有门槛的高度和配筋。
15、07FJ02 防空地下室建筑构造,第119120页如下,正确请采纳。

16、07FJ02 防空地下室建筑构造,107页。
免责声明: 本站提供的任何内容版权均属于相关版权人和权利人,如有侵犯你的版权。 请来信指出,我们将于第一时间删除! 所有资源均由免费公共网络整理而来,仅供学习和研究使用。请勿公开发表或 用于商业用途和盈利用途。
本文链接:http://m.www.studdz.com/ziyuan/12171.html
发表评论