建造师
一级建造师 betway西汉姆app下载
制定本规范102本规范适用于新建扩建和改建的各类人防工程的施工及验收103人防工程施工前,建设单位应将竣工验收报告和验收备案表报人防主管...
1654×1169像素图片图集号02J4010203J401专业标准类别标准图图集介绍本图集适用于一般工业与民用建筑,2、07fj02人...
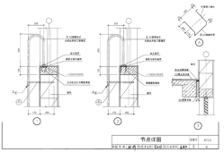
作法详见07FJ023在底板钢筋绑扎阶段应注意在防护门及活门门框每角2根长度1000的16螺纹钢预埋,作法详见07FJ02及07FG02...
只是每个型号的门的吊环就在112页了如下图人防门框后有预埋钢筋,锚入口部的钢筋混凝土墙中人防又称民防,07fj02人防图集第107页节点...
取得住房城乡建设部门认定的建设工程设计企业人防工程专业资质即可开展人民防空工程设计,让没做过人防工程的设计人员可在短时间内会做人防工程,...
取得住房城乡建设部门认定的建设工程设计企业人防工程专业资质即可开展人民防空工程设计,让没做过人防工程的设计人员可在短时间内会做人防工程,...
取得住房城乡建设部门认定的建设工程设计企业人防工程专业资质即可开展人民防空工程设计,让没做过人防工程的设计人员可在短时间内会做人防工程,...
取得住房城乡建设部门认定的建设工程设计企业人防工程专业资质即可开展人民防空工程设计,让没做过人防工程的设计人员可在短时间内会做人防工程,...
人防工程注册必威betway官网入口 是指具有建设行政主管部门注册必威betway官网入口 资格,经国家人防主管部门组织的人防工程监理知识培训考试合格并取得相应证书,从...
没有更多内容